تقویم مناسبتی اسفند 1404 + فایلهای لایه باز مناسبتها
مشاهده همه فایل های گرافیکی
قالب های اینستاگرام
پوستر و تراکت
کارت ویزیت
لوگو
موکاپ
بنر و استند
منوی رستوران
بروشور سه لت
کاتالوگ دو لت
تقویم و سررسید
کارت شناسایی
وکتور و لیبل
رابط کاربری
کارت پستال
تکسچر
پس زمینه
اینفوگرافیک
فاکتور فروش
سربرگ و سرنسخه
ست اداری
طرح مهر
آگهی ترحیم و اعلامیه فوت
تایپوگرافی و افکت متن
کارت هدیه و کوپن تخفیف
لوح تقدیر خام و گواهینامه
کاور آپارات و یوتیوب
آلبوم دیجیتال
جلد تحقیق و گزارش
طرح بسته بندی
استیج معرفی محصول
طرح لیوان و ماگ
جلد دفتر و کتاب
طرح لباس
پاکت نامه
پلاگین
مشاهده همه فایل های سه بعدی
خانه و ساختمان
ماشین
هواپیما
دوچرخه
کشتی
موتور
مردم
در و پنجره
لوازم دکوری
صندلی
لامپ و لوستر
مبلمان
شهر و خیابان
درخت و گیاهان
گچ بری
ساز موسیقی
مشاهده همه فایل های آموزشی
نمونه سوال
درسنامه و جزوه
پاور پوینت
کاربرگ
مشاهده همه فایل های برنامه ریزی
پلنر
برنامه هفتگی کلاسی
مدیریت پروژه
مدیریت مالی
مشاهده همه فایل های قالب ارائه
قالب رزومه
تم پاورپوینت
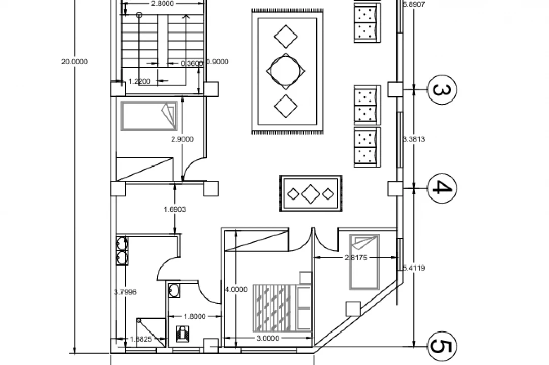
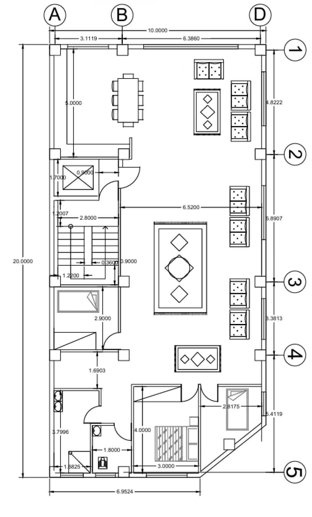
دانلود فایل اتوکد پلان معماری ساختمان دو نبش مسکونی به ابعاد 10x20.به همراه پلان پارکینگ. پلان طبقات. برش راه پله. پلان تیر ریزی و ستون گذاری
سوالات و نظرات